Predaj domu 142 m2, Bratislava - Devín
BratislavskýDEVÍN: Nízkoenergetický rekreačný dom s modernými technológiami
Detailné informácie
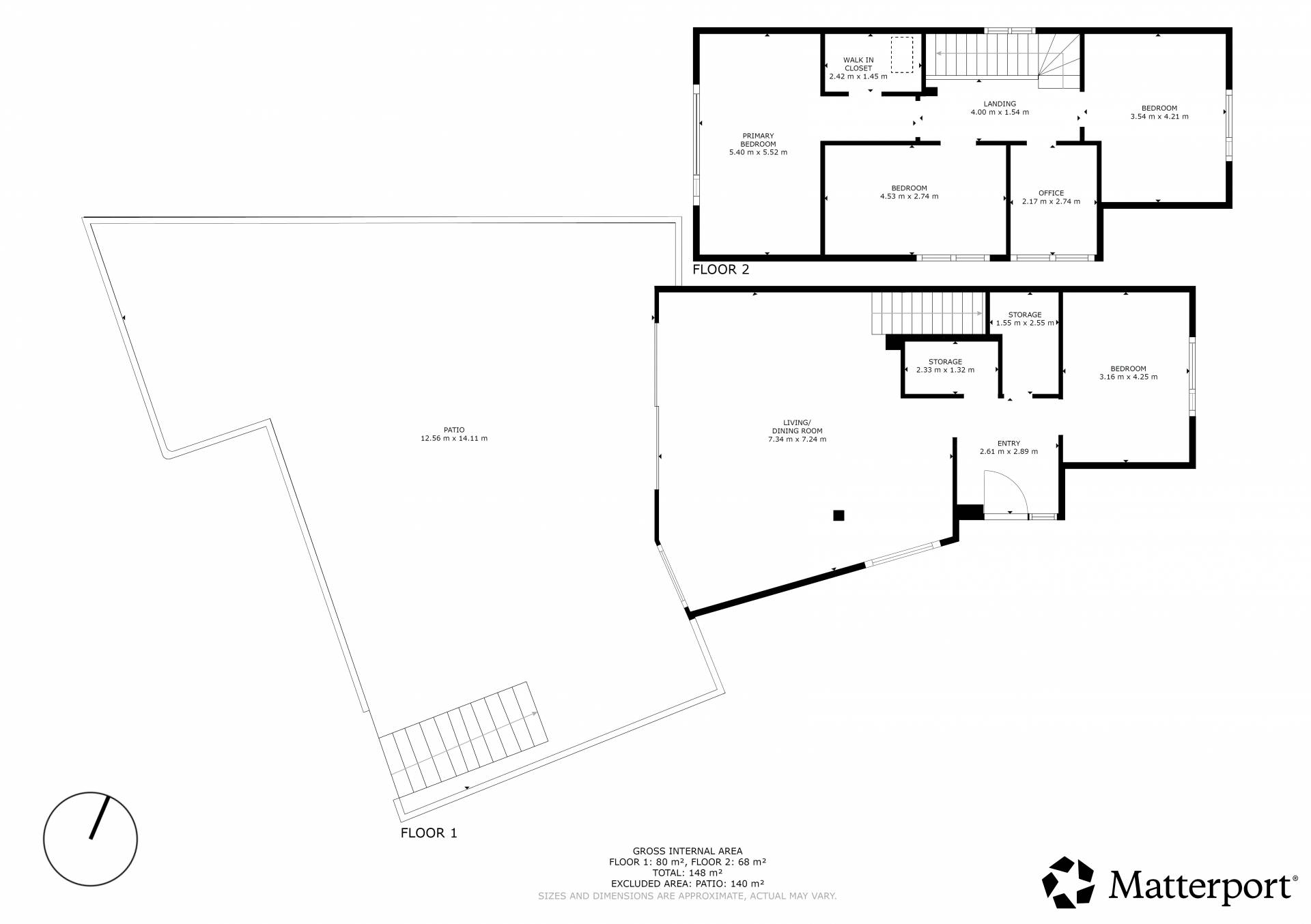
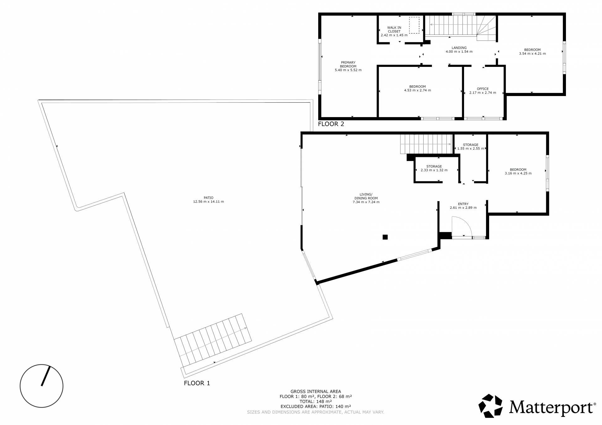
Hľadáte moderné bývanie v dome, ale chcete spojiť mesto s pokojom vidieka? Potom tento dom splní všetky Vaše očakávania. Kompaktnosť a usporiadanie je navrhnuté do detailov tak, aby naplnilo očakávania modernej rodiny. Prevedenie " Holodom " Vám umožní dokončiť priestor a farebné doladenie podľa Vašich predstáv. Realitná kancelária RE/MAX Expert Vám vo výhradnom zastúpení klienta ponúka možnosť kúpiť 5-izbový rekreačný dom s tromi kúpeľňami a dokonale presvetleným priestorom v MČ Devín – miestna časť Svätopluk. Dom sa nachádza na slnečnom 375 m2 pozemku. Obytná plocha rekreačného domu je 141,7 m2 na dvoch podlažiach so zastavanou plochou 92,22 m2. Pozemok je zo všetkých strán oplotený, v priamom susedstve sú obyvatelia s trvalým pobytom. Pozemok disponuje dvomi parkovacími státiami zo strany Delenej cesty. Príjazd je po spevnenej ceste s mestským osvetlením. Dom bude dokončený a skolaudovaný koncom roka 2025. ZÁKLADNÁ CHARAKTERISTIKA: - celková úžitková plocha: 141,71 m2 - plocha prízemia : 77,18 m2 - plocha poschodia : 64,53 m2 ŠPECIFIKÁCIA STAVBY DOKONČENOSTI: Interiér: - tehlová stavba, 300mm + zateplenie 180 mm polystyren EPS 70, - omietky sádrové - drevené okná euro hr. 923mm, trojsklo ug=0,50, 10 rokov záruka na ext. lakovanie - keramická škridla Tondach - tepelné čerpadlo vzduch-voda HYUNDAI - predpríprava na klimatizačné jednotky - akumulačná pec Hoxter - predpríprava na kamerový systém hi vision a alarmové systémy Jablotron - podlahové kúrenie v celom dome, každé podlažie má samostatný termostat - extra elektrické podlahové kúrenie v kúpeľniach na 2.np ( 2 ks) - podomietkové batérie sprchy, samostatne stojaca batéria pre vaňu - samostatný okruh kúrenia 1.NP. 2.NP, pomocou čerpadlovej sústavy (2 termostaty) ovládanie cez wify - predpríprava na exteriérové žalúzie, ovládanie cez mobil a každé okno elektronicky, farba bude určená neskôr - Telekom kabeláž do domu - priame napojenie metaliku, predpríprava na optiku - obklady a dlažba v tech. miestnosti, - obklady a dlažba v kúpeľni na 1NP Exteriér: - fotovoltaika malý zdroj s výkonom 5,70 kWp, vrátane zapojenia do zs-dis- zmluva virtuálna batéria - drevený obklad fasády pri vstupe a stene pri terase - terénne úpravy na pozemku - zelené strechy na plochej časti domu: balkón a strecha nad jedálňou - parking pre 2 motorové vozidlá - energetická náročnosť stavby: A0 - na spodnej hranici - predpokladaná spotreba energie: el. energia = varenie, svietenie, kúrenie a TÚV= cca 4,90 MWh / rok (odhadovaná výška mesačných platieb do 50 eur), predpokladaná výroba FV zdroja = 6,85 MWh / rok TOP 5 VÝHOD DOMU: - vynikajúca lokalita plná zelene - veľkorysá denná časť s terasou - dokončenie podľa vlastných predstáv - perfektná dispozícia - tiché prostredie, málo susedov LOKALITA: Rek. dom sa nachádza v tichej lokalite, priamo v prírode na svahu Devínskej Kobyly, v kvalitnom životnom prostredí bez smogu. V úplnej blízkosti je turistické vyžitie, náučné chodníky na Devínsku Kobylu, či vybudované cyklotrasy. V okolí sa nenachádza priemysel, ktorý by mohol akokoľvek narúšať príjemné bývanie. MHD je v pešej blízkosti, do 150m zástavka BUS č. 29 priamo do centra Bratislavy cca 15 min. Dostupnosť autom je bezproblémová či už smerujete do centra BA, alebo okolitých mestských častí. Mestská časť Devín má kompletnú občiansku vybavenosť, Pošta, škôlka, škola s anglickým jazykom, exkluzívne kvalitné potraviny „Od našich“, reštaurácie, Sokoliareň - Mini ZOO, cukrárne a môže sa pýšiť nielen hradom Devín z 9. Storočia, ale aj Kostolom sv. Kríža z 13. storočia, Kaštieľom zo 17. Storočia, či kultúrnym a turistickým vyžitím. Toto všetko a ešte viac môžete čoskoro volať svojim domovom, stačí si správne a rýchlo vybrať. :) Ak hľadáte pokojné bývanie, tento rekreačný dom je stvorený práve pre vás, neváhajte a dohodite si obhliadku čo najskôr.
| Cena predaj: | 635 000,00 € Za nehnuteľnosť |
| Číslo zakázky | 126-N00565 |
| Okres | Bratislava IV |
| Mesto | Bratislava - Devín |
| Počet poschodí | 2 |
| Úžitková plocha | 142 m² |
| Plocha parcely | 375 m² |
| Plocha zastavaná | 92 m2 |
| Úžitková plocha podkrovia | 65 m² |
| Úžitková plocha prízemie | 77 m² |
Virtuálna prehliadka
Túto nehnuteľnosť Vám rád(a) predstaví (13 nehnuteľností)
Zuzana Ďurinová
Zuzana Ďurinová
RE/MAX ExpertMolecova 4/C
Bratislava, 841 04
Slovenská republika
Odkaz na partnera predaja
Tel. do kancelárie: 0902 335 335
E-mail: zuzana.durinova@re-max.sk
Ďalšie nehnuteľnosti partnera predaja
Hypokalkulačka
Potrebujete poradiť / máte záujem o obhliadku?
Podobné nehnuteľnosti v okolí
Predaj domu 155 m2, Bratislava - Devín
Realitná kancelária RE/MAX Vám vo výhradnom zastúpení klienta ponúka na predaj parádnu, dokončenú, kvalitnú stavbu 5 izbového rodinného d
Predaj domu 180 m2, Bratislava - Devín
Realitná kancelária RE/MAX v našom zastúpení ponúka novučkú, nadčasovú nehnuteľnosť, z ktorej informácia “všade na skok” znamená na





