Prenájom komerčného priestoru 255 m2, Podbrezová
BanskobystrickýPrenájom: priestory pre obchod, služby, administratívu, kancelárie v centre Podbrezovej
Detailné informácie
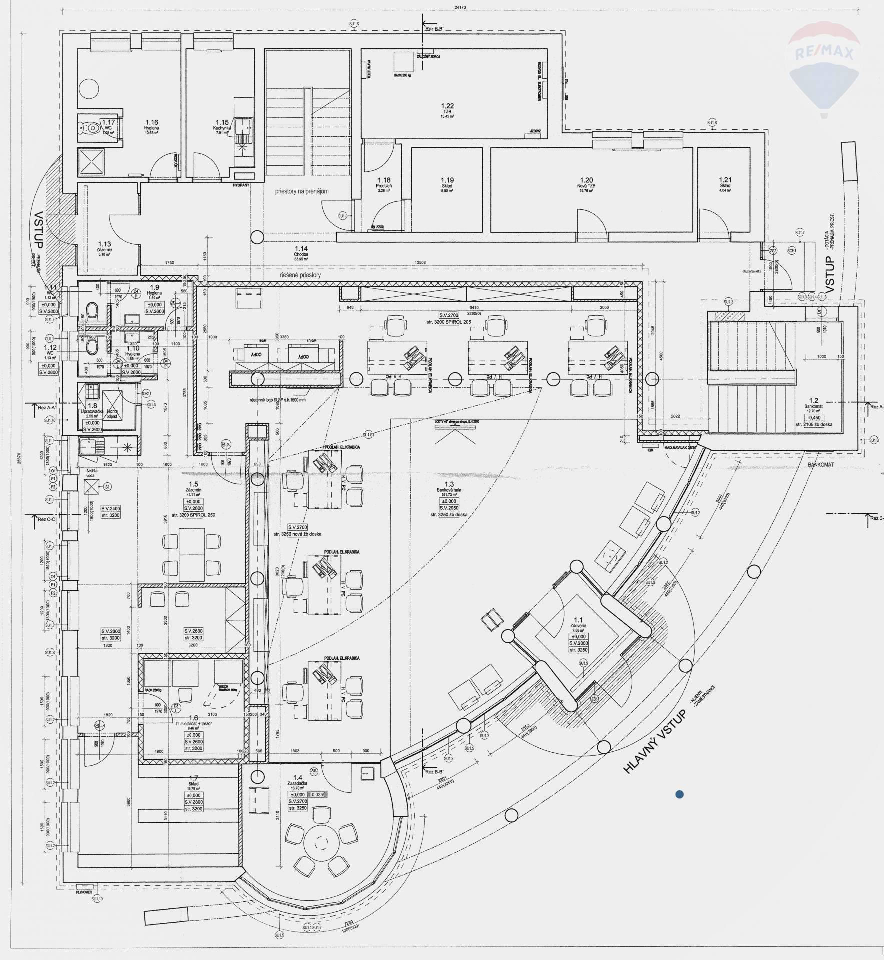
Ponúkame Vám na prenájom priestory ( 250 m2) v centre obce Podbrezová, ktoré sú vhodné na obchodnú prevádzku, prevádzku služieb, administratívu. Priestory sa nachádzajú v zrekonštruovanom objekte, ktorý je napojený na elektroinštaláciu, vodu, kanalizáciu aj prípojku zemného plynu, má aj rozvody telekomunikačné a počítačové sieťové rozvody. ( samostatné merače energií) Priestory spolu o výmere cca 255 m2 pozostávajú zo zádveria 7 m2, veľkometrážnej obchodnej haly 152 m2, zasadačky 16.70 m2, zázemia 41 m2, IT miestnosti 9,46 m2, skladu 16,79 m2, 2x WC a 2x hygiena, kuchynka, miestnosť pre upratovačku. Priestory boli zrekonštruované v roku 2012 pre bývalú prevádzku služieb bankovej inštitúcie Slovenskej sporiteľne a.s. K priestorom je k dispozícii parkovanie. Obec Podbrezová je významným priemyselným centrom na Pohroní. Obec leží v banskobystrickom kraji, v západnej časti okresu Brezno medzi pohoriami Nízke Tatry a Slovenské rudohorie. Viac na : https://www.podbrezova.sk/
| Cena prenájom: | 1 250,00 € za mesiac |
| Číslo zakázky | 090-N01413 |
| Okres | Brezno |
| Mesto | Podbrezová |
| Počet poschodí | 2 |
| Úžitková plocha | 255 m² |
| Plocha kancelárii | 255 m² |
| Plocha najmenšia | 2 m² |
| Plocha najväčšia | 152 m² |
| Plocha skladu | 17 m² |
Túto nehnuteľnosť Vám rád(a) predstaví (32 nehnuteľností)
Anna Přidalová
Anna Přidalová
RE/MAX JoyM.R. Štefánika 43
Brezno, 977 01
Slovenská republika
Odkaz na partnera predaja
Tel. do kancelárie: 0948611595
E-mail: anna.pridalova@re-max.sk
Ďalšie nehnuteľnosti partnera predaja





