Predaj chaty 480 m2, Veľké Uherce
TrenčianskyPREDAJ Rekreačné zariadenie Veľké Uherce výrazná zľava!!!
Detailné informácie
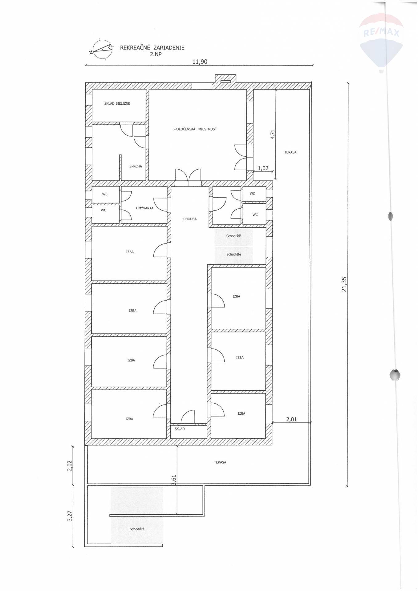
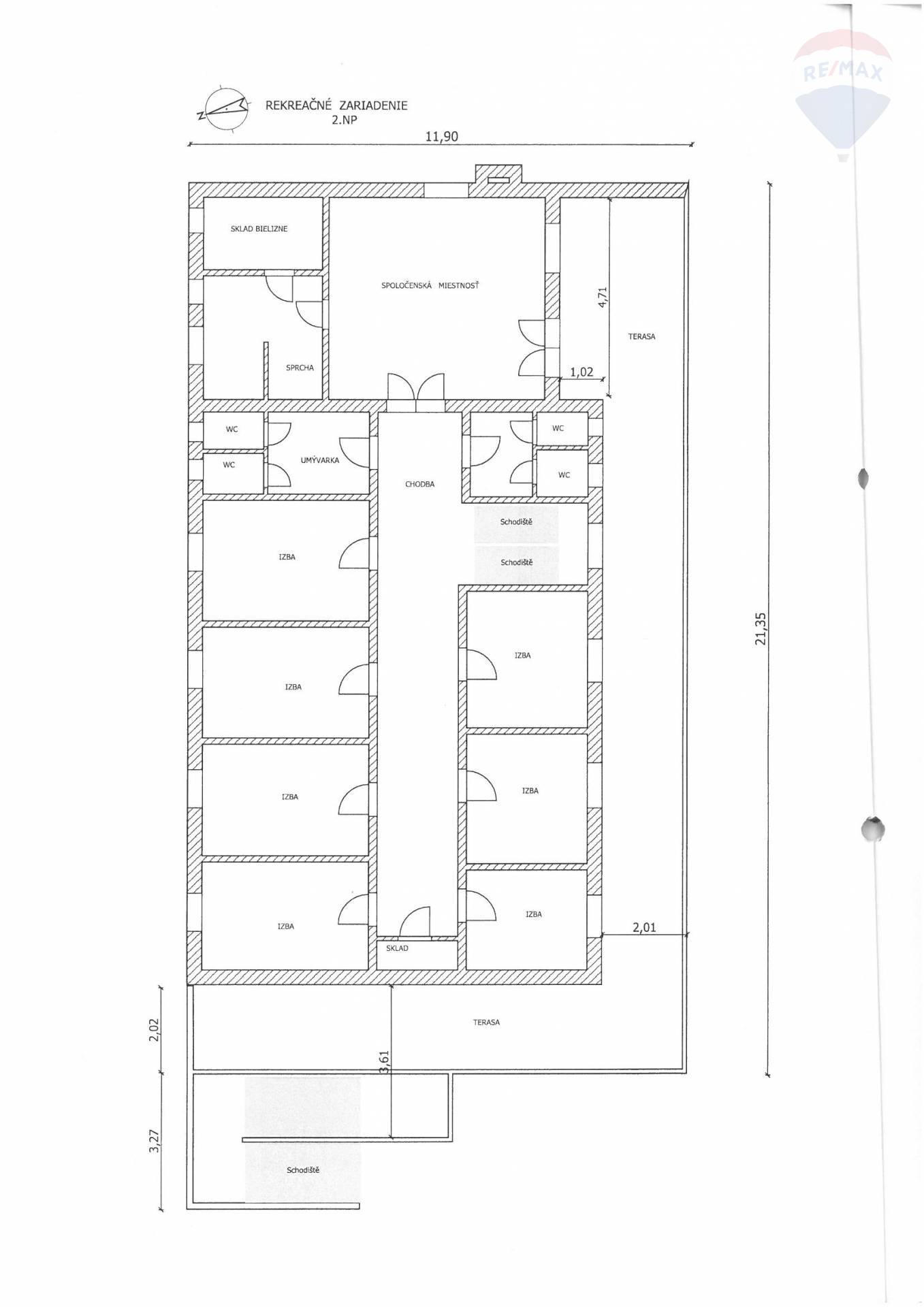
Ponúkame na predaj Rekreačné zariadenie vrátane tenisového kurtu v obci Veľké Uherce, okr. Partizánske. Je to areál s kapacitou ubytovania pre 30 ľudí, nachádza sa v okrajovej časti obce v blízkosti priehrady a hôr. Jedná sa o dvojpodlažnú budovu, má zastavanú plochu cca 270 m2 a kapacitu ubytovania cca 30 ľudí. Na prízemí sa nachádza spoločenská miestnosť, jedáleň pre cca 30 ľudí, vybavená kuchyňa (pec na pizzu, konvektomat, elektrická trúba, 2 x umývačka riadu, miesič na cesto – všetko vybavenie z roku 2009), sklad, zamestnanecká izba, pánska a dámska kúpeľňa spolu so sprchovými kútmi, kotolňa. Na 1. poschodí sa nachádza 7 ubytovacích izieb – každá s kapacitou pre 4 osoby, spoločenská miestnosť, pánske a dámske wc, terasa. Budova prešla v roku 2009 kompletnou rekonštrukciou: elektrika, rozvody, omietky, fasády, podlahy, znížené stropy, zateplenie, nábytok a vybavenie, strecha plechová robená v roku 2014. Budova je napojená na vodovod cez prečerpávaciu stanicu, má vlastnú žumpu, elektrika. Kúrenie a ohrev teplej vody je zabezpečené kotlom na pevné palivo, ktorý sa nachádza v garáži na prízemí. Areál má k dispozícií Multifunkčné športové ihrisko s umelohmotným trávnatým povrchom s pravidelnou údržbou, je oddrenážované, využiteĺnosť aj v zime na rôzne športové sústredenia - tenis, atletika..... Možnosť využitia areálu na pravidelne firemné a spoločenské akcie, organizovanie detských táborov, workshopov, retreat pobytov..... Areál možno využiť aj ako ubytovňu pre zamestnancov. Možnosti rekreačného využitia: turistika, cykloturistika, kúpanie na priehrade, rybárčenie, hubárčenie, tenis, futbal, basketbal, lyžovanie a bežkovanie. Komplex sa predáva spolu so všetkým vybavením, nábytkom, zariadením kuchýň, elektrospotrebičmi, vykurovacími zariadeniami. V blízkosti areálu sú ďalšie rekreačné strediská: Bojnice, Chalmová, Malé Bielice... Pri úprimnom záujme dohoda istá !!!
| Cena predaj: | 277 000,00 € Za nehnuteľnosť |
| Číslo zakázky | 087-N02846 |
| Okres | Partizánske |
| Mesto | Veľké Uherce |
| Počet poschodí | 2 |
| Úžitková plocha | 480 m² |
| Plocha parcely | 1000 m² |
| Plocha zastavaná | 270 m2 |
Túto nehnuteľnosť Vám rád(a) predstaví (24 nehnuteľností)
Žaneta Rakovská
Žaneta Rakovská
RE/MAX TechrealityG. Švéniho 4/A
Prievidza, 971 01
Slovenská republika
Odkaz na partnera predaja
Tel. do kancelárie: +421 918 890 188
E-mail: zaneta.rakovska@re-max.sk
Ďalšie nehnuteľnosti partnera predaja
Hypokalkulačka





