Predaj pozemku 548 m2, Horná Lehota
BanskobystrickýPredaj pozemku na výstavbu rekreačnej chaty na Krpačove
Detailné informácie
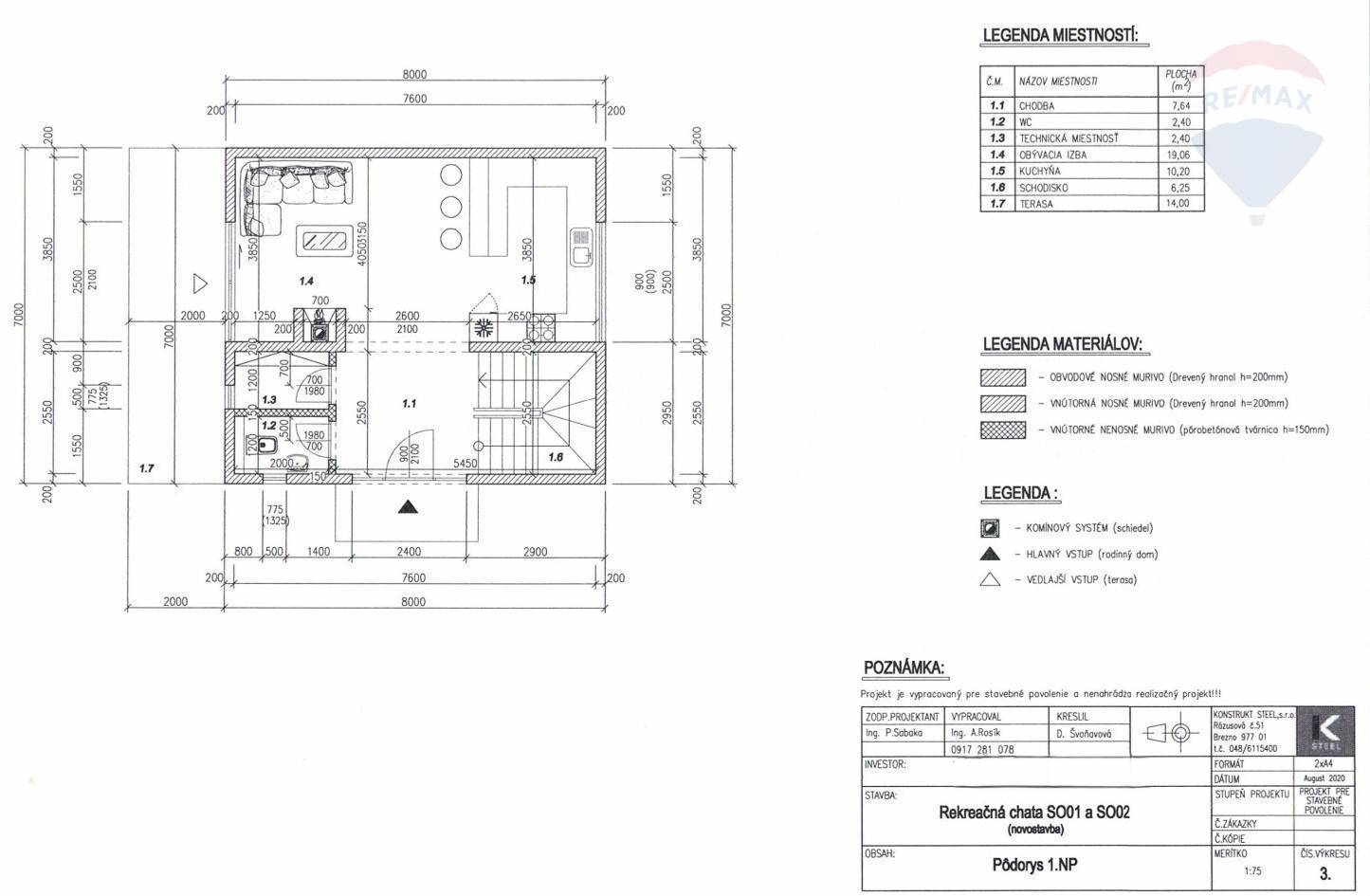
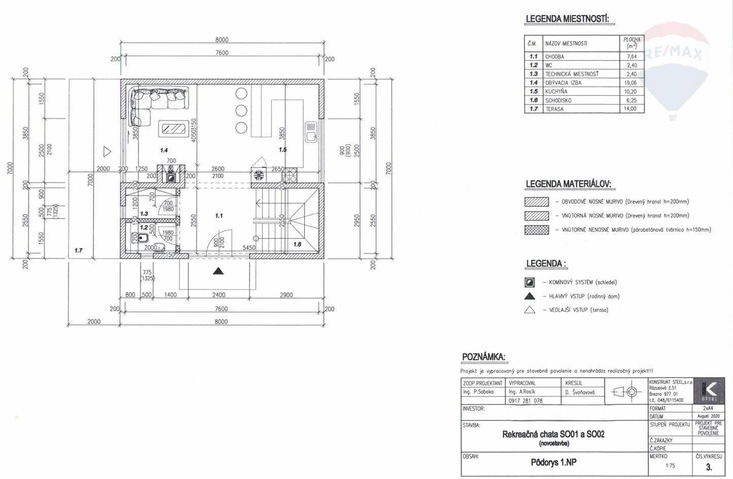
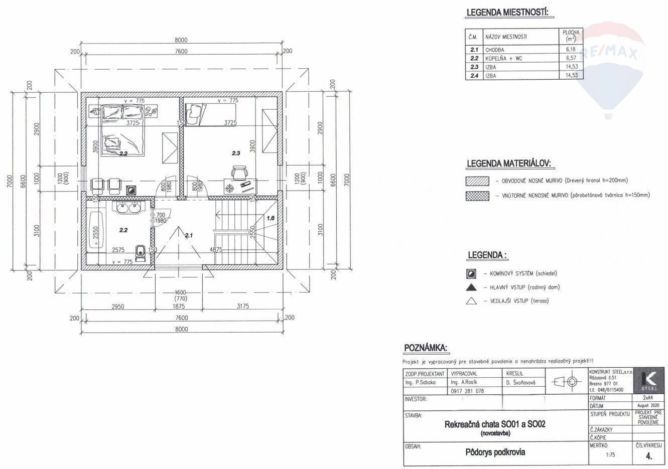
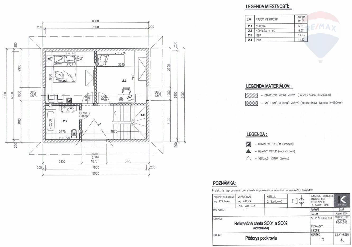
RE/MAX Joy exkluzívne ponúka na predaj pozemok s územným rozhodnutím a rozhodnutím o umiestnení stavby s projektom rekreačnej chaty v obľúbenej oblasti Krpačovo. Splňte si sen o vlastnej chate v srdci prírody – všetko je pripravené, stačí začať stavať. Pozemok je vyčistený, bez náletových drevín, mierne svahovitý a prístupný zo spevnenej komunikácie. S rozlohou cca 548,5 m2 vhodný na výstavbu jednopodlažnej chaty s obytným podkrovím je ideálny pre rodinnú rekreáciu. Jedinečnou výhodou tejto ponuky je možnosť kúpy aj susedného pozemku, ktorý je rovnako pripravený na výstavbu. Ak teda túžite tráviť voľné chvíle so svojimi priateľmi alebo rodinou v tesnej blízkosti, môžete si spoločne vybudovať vlastné rekreačné zázemie a vytvoriť si tak malú komunitu v krásnom prostredí Krpačova. Výhody: - Platné územné rozhodnutie a rozhodnutie o umiestnení stavby - Stavebné povolenie na chatu s rozmerom 8 m x 7 m - Možnosť kúpy susedného pozemku pre priateľov či rodinu a vybudovania spoločného rekreačného areálu - K dispozícii projektová dokumentácia Dispozícia chaty: 1. NP: -Chodba 7,64 m2 -WC 2,40 m2 -Technická miestnosť 2,40 m2 -Obývacia izba 19,06 m2 -Kuchyňa 10,20 m2 -Schodisko 6,25 m2 -Terasa 14,00 m2 2. NP: -Chodba 6,18 m2 -Kúpeľňa + WC 6,57 m2 -Izba 14,53 m2 -Izba 14,53 m2 Inžinierske siete a technické riešenia: Voda: vŕtaná studňa Odpad: žumpa Elektrina: fotovoltika Vykurovanie: krb, prípadne elektrické radiátory Ak túžite po vlastnej oáze pokoja v krásnom prostredí Krpačova a radi by ste si ju užívali spolu s blízkymi, neváhajte nás kontaktovať. Radi vám poskytneme viac informácií, projektovú dokumentáciu a dohodneme obhliadku
| Cena predaj: | 89 900,00 € Za nehnuteľnosť |
| Číslo zakázky | 090-N01785 |
| Okres | Brezno |
| Mesto | Horná Lehota |
| Celková plocha | 548 m² |
Túto nehnuteľnosť Vám rád(a) predstaví (19 nehnuteľností)
Zuzana Matzenauerová
Zuzana Matzenauerová
RE/MAX JoyM.R. Štefánika 43
Brezno, 977 01
Slovenská republika
Odkaz na partnera predaja
Tel. do kancelárie: 0948611595
E-mail: zuzana.matzenauerova@re-max.sk
Ďalšie nehnuteľnosti partnera predaja
Hypokalkulačka





