Predaj domu 214 m2, Bratislava - Rača
BratislavskýZrekonštruovaný 5 izbový Rodinný dom s garážou a záhradou
Detailné informácie
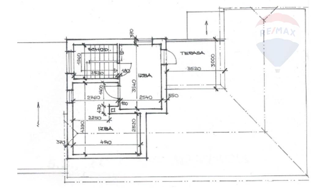
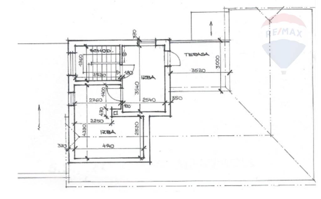
Ponúkame na predaj 2-podlažný murovaný, podpivničený rodinný dom s celkovou úžitkovou plochou 213,9 m² (48,05 m² podzemné podlažie, 129,6 m² prízemie, 36,36 m² podkrovie), postavený z plnej tehly s hrúbkou 45 cm. Dom sa nachádza na pozemku s celkovou výmerou 612 m². Dom prešiel čiastočnou rekonštrukciou – boli osadené nové hliníkové okná a dvere s trojsklom, kompletne vymenené rozvody elektriny, vody a kúrenia. Interiér Interiér domu je po kompletnej rekonštrukcii: nové sadrové omietky a stropy, podlahy z prírodných materiálov – 2 cm hrubý tavený andezit a masívne bukové parkety, nová kúpeľňa a WC so sanitou značky Villeroy & Boch, útulné izby s dostatkom denného svetla, praktická dispozícia s prepojením dennej časti a kuchyne, v suteréne sa nachádza vínna pivnica a skladové priestory. Exteriér K domu prislúcha záhrada s kopanou studňou (hĺbka 9 m) vhodnou na polievanie, garáž/dielňa s rozlohou 48 m² a terasa s prístupom z podkrovia, ideálna na oddych či letné posedenia. Inžinierske siete Dom je napojený na mestskú vodu, plyn, elektrinu a kanalizáciu. Lokalita Dom sa nachádza v tichej a bezpečnej štvrti na oblačnej ulici v Rači s výbornou dostupnosťou do centra mesta a rýchlym napojením na hlavnú cestu. V okolí sa nachádza kompletná občianska vybavenosť – školy, škôlky, obchody, reštaurácie, zdravotné stredisko aj verejná doprava. Blízkosť prírody a zelene robí túto lokalitu ideálnou pre rodinné bývanie aj pre tých, ktorí hľadajú pokoj v kombinácii s mestským komfortom.
Cena predaj: | 565 500,00 € Za nehnuteľnosť |
Číslo zakázky | 082-N03106 |
Okres | Bratislava III |
Mesto | Bratislava - Rača |
Ulica | Oblačná |
Počet poschodí | 1 |
Úžitková plocha | 214 m² |
Plocha parcely | 612 m² |
Plocha zastavaná | 296 m2 |
Úžitková plocha podkrovia | 36 m² |
Úžitková plocha prízemie | 130 m² |
Túto nehnuteľnosť Vám rád(a) predstaví (9 nehnuteľností)
Peter Didek


Peter Didek
RE/MAX DiamondDunajská 14
Bratislava, 811 08
Slovenská republika
Odkaz na partnera predaja
Tel. do kancelárie: +421 914 337 703
E-mail: peter.didek@re-max.sk
Ďalšie nehnuteľnosti partnera predaja

Potrebujete poradiť / máte záujem o obhliadku?
Podobné nehnuteľnosti v okolí

Predaj pozemku 1590 m2, Bratislava - Rača
Realitná kancelária RE/MAX exkluzívne ponúka na predaj slnečný pozemok s krásnym výhľadom na Bratislavu a Podunajskú nížinu s investičný

Predaj bytu (1 izbový) 30 m2, Bratislava - Rača
Realitná kancelária RE/MAX Vám exkluzívne ponúka príjemný 1-izbový byt s výmerou 30,5 m², ktorý sa nachádza v obľúbenej mestskej časti

Predaj pozemku 1033 m2, Bratislava - Rača
ealitná kancelária RE/MAX Plus ponúka exkluzívne na predaj krásny rekreačný pozemok o výmere 1033 m2 nachádzajúci sa v atraktívnej lokal

Predaj pozemku 2033 m2, Bratislava - Rača
Realitná kancelária RE/MAX Plus ponúka exkluzívne na predaj krásny rekreačný pozemok o výmere 2033 m2 nachádzajúci sa v atraktívnej lokalit

Predaj pozemku 1033 m2, Bratislava - Rača
Realitná kancelária RE/MAX Plus ponúka exkluzívne na predaj krásny rekreačný pozemok o výmere 1033 m2 nachádzajúci sa v atraktívnej loka

Predaj pozemku 1000 m2, Bratislava - Rača
Realitná kancelária RE/MAX Plus ponúka exkluzívne na predaj krásny rekreačný pozemok o výmere 1000 m2 nachádzajúci sa v atraktívnej loka

Predaj pozemku 2033 m2, Bratislava - Rača
Realitná kancelária RE/MAX Plus ponúka exkluzívne na predaj krásny rekreačný pozemok o výmere 2033 m2 nachádzajúci sa v atraktívnej loka

Predaj pozemku 1000 m2, Bratislava - Rača
Realitná kancelária RE/MAX Plus ponúka exkluzívne na predaj krásny rekreačný pozemok o výmere 1000 m2 nachádzajúci sa v atraktívnej loka