Predaj domu 200 m2, Malinovo
Bratislavský6-izbový rodinný dom s dvojgarážou v Malinove
Detailné informácie
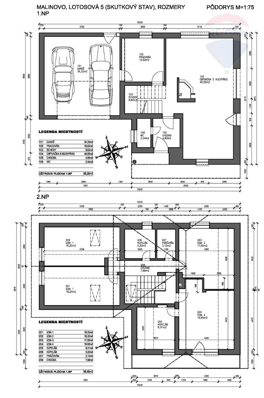
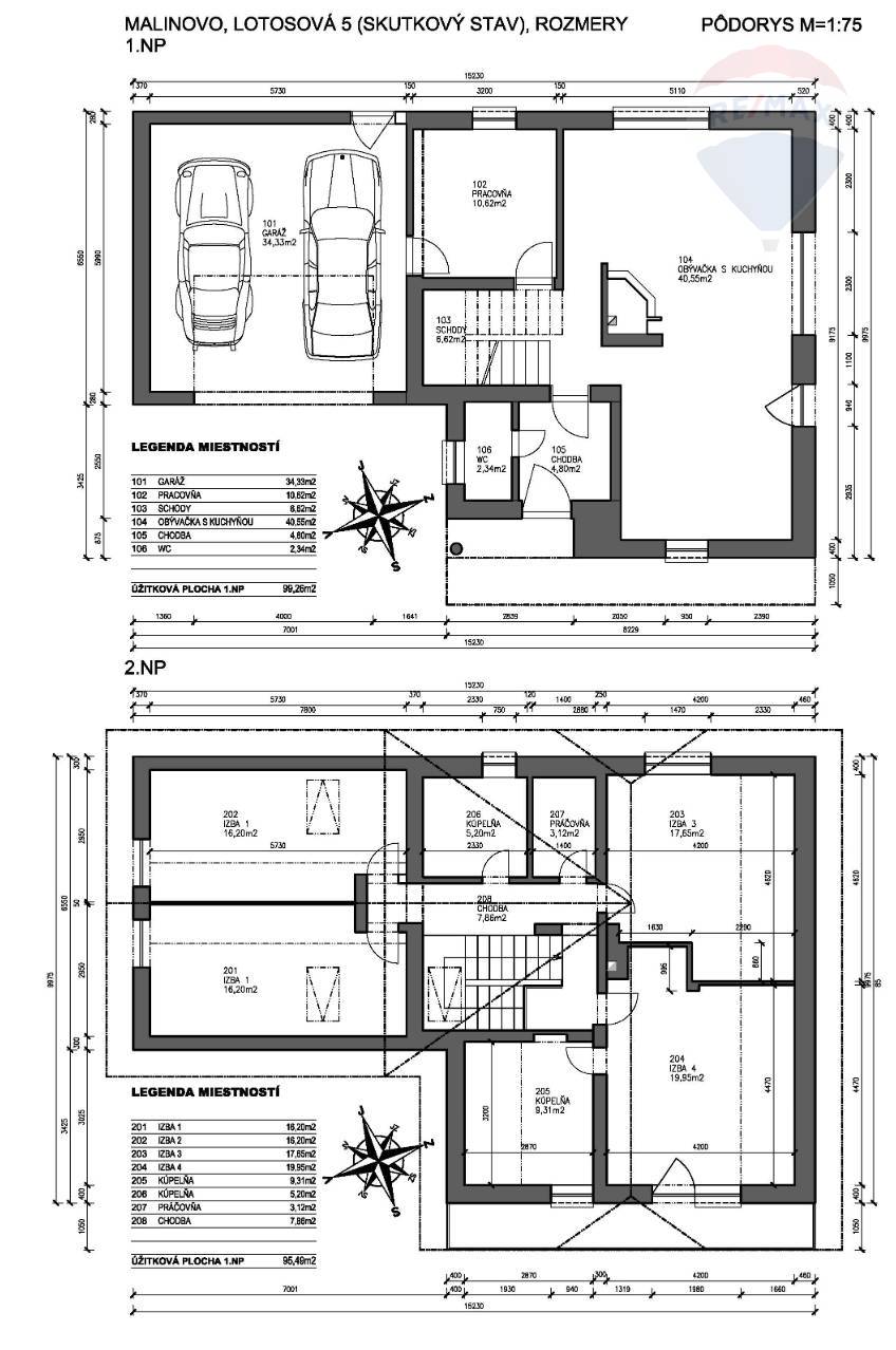
Ponúkame priestranný 6-izbový rodinný dom s dvojgarážou, ktorý sa nachádza v tichej slepej ulici v obľúbenej lokalite Malinovo, len 15 minút od Bratislavy. Dom ponúka dostatok priestoru pre rodinu, moderné technológie, záhradu s bazénom a vysokú mieru súkromia. Základné údaje: - Úžitková plocha domu: 200 m² - Pozemok: 486 m² + podiel na prístupovej ceste - Počet izieb: 6 - Dvojgaráž + 2 vonkajšie parkovacie miesta - Tehlová stavba (45 cm) so zateplením Technické vybavenie a komfort: - Krb s teplovodným výmenníkom napojený na podlahové kúrenie aj radiátory - Nainštalovaná a plne funkčná klimatizácia - Inteligentná elektroinštalácia (Legrand) - Elektrické vonkajšie žalúzie - Osvetlenie vo všetkých miestnostiach - Optický internet - Automatická garážová brána - Manuálna vstupná brána - Príprava na kamerový systém (napr. nad garážou) - Záhrada so závlahovým systémom napojeným na vlastnú studňu - Bazén Stav interiéru: Dom je technicky dokončený – kúrenie, omietky, podlahy, sanita, osvetlenie. Chýba kuchynská linka a voľne stojací nábytok. V každej izbe sa však nachádza vstavaná skriňa. Dispozícia: Prízemie: Vstupná chodba, obývačka s výstupom na krytú terasu, kuchyňa (príprava), kúpeľňa, WC, technická miestnosť s prechodom do garáže Poschodie: Tri spálne, pracovňa, dve kúpeľne, práčovňa Výhoda oproti bytu v Bratislave: Za cenu 4-izbového bytu v Bratislave získate: - Šesť plnohodnotných izieb - Dvojpodlažný dom s dvojgarážou - Vlastnú záhradu, bazén a krytú terasu - Moderné technológie a vyšší komfort Dom je pripravený na finálne dokončenie podľa vašich predstáv. Odhadované náklady na kuchyňu a doplnky: 35.000 – 50.000 €. Lokalita: Malinovo ponúka kompletnú občiansku vybavenosť – škola, škôlka, potraviny, reštaurácie, služby, MHD. V pešej dostupnosti je detské ihrisko, jazero a možnosti pre voľnočasové aktivity. Rýchle napojenie na R7/D4 zabezpečuje výbornú dostupnosť do Bratislavy (15 minút autom). V prípade záujmu o obhliadku alebo viac informácií ma neváhajte kontaktovať.
Cena predaj: | 483 000,00 € Za nehnuteľnosť |
Číslo zakázky | 082-N03109 |
Okres | Senec |
Mesto | Malinovo |
Počet poschodí | 1 |
Úžitková plocha | 200 m² |
Plocha parcely | 486 m² |
Plocha zastavaná | 200 m2 |
Túto nehnuteľnosť Vám rád(a) predstaví (10 nehnuteľností)
Peter Didek


Peter Didek
RE/MAX DiamondDunajská 14
Bratislava, 811 08
Slovenská republika
Odkaz na partnera predaja
Tel. do kancelárie: +421 914 337 703
E-mail: peter.didek@re-max.sk
Ďalšie nehnuteľnosti partnera predaja

Potrebujete poradiť / máte záujem o obhliadku?
Podobné nehnuteľnosti v okolí

Predaj domu 138 m2, Malinovo
Výborne umiestnený samostatný rodinný dom na začiatku časti Tri Vody - všetko máte po ruke. Ak vás táto veta zaujala, čítajte ďalej.