Predaj bytu (4 izbový) 105 m2, Trenčín
TrenčianskyNa predaj 4 izbový byt Trenčianska Riviéra
Detailné informácie
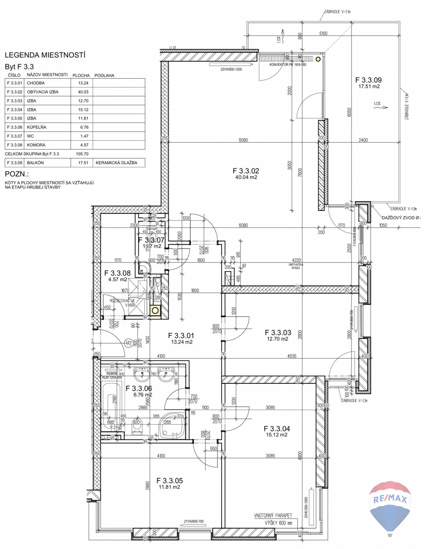
RE/MAX EXTRA ponúka na predaj 4-izbový byt o rozlohe 105 m² na Trenčianskej Riviére s výhľadom na rieku Váh. K bytu prislúcha garážové státie a murovaná pivnica. Byt sa nachádza na treťom poschodí a je súčasťou bytového domu, v ktorom sa nachádza dokopy 17 bytov. Samozrejmosťou je bezbariérový prístup. Medzi hlavné výhody tohto bytu je blízkosť centra mesta a pešia vzdialenosť občianskej vybavenosti. Prístup na hrádzu a cyklotrasu, neďaleké športoviská (golfové ihrisko, tenisové kurty, atletická dráha) a detské ihrisko patria medzi ďalšie výhody bývania v tejto lokalite. Dominantou bytu je obývacia izba spojená s kuchynskou a jedálenskou časťou, z ktorej sa dá vyjsť na vonkajšiu terasu. Terasa o rozlohe 17,5m² ponúka výhľad na západy slnka nad riekou Váh. Okrem toho byt disponuje ďalšími tromi nepriechodnými izbami, vstupnou chodbou, samostatnou toaletou, priestrannou kúpeľňou s vaňou, sprchovým kútom a WC. V byte sa nachádza aj technická miestnosť s vlastným plynovým kotlom. Zariadenie bytu zahŕňa vstupné bezpečnostné dvere, kvalitné interiérové dvere, kuchynskú linku so vstavanými spotrebičmi (umývačka riadu, rúra, mikrovlnná rúra, indukčná varná doska). Vykurovanie a ohrev TÚV je zabezpečené plynovým kotlom. V byte sú plastové okná, sieťky na oknách a exteriérové žalúzie. Doplňujúce informácie: V prípade viacerých záujemcov o kúpu bude kupujúci vybraný na základe kritérií stanovených predávajúcim. V cene nehnuteľnosti je zahrnutý kompletný právny a realitný servis, vrátane: - vypracovania kúpnych zmlúv a návrhov na vklad do katastra nehnuteľností právnikom, - úhrady správneho poplatku za návrh na vklad kúpnej zmluvy, - zabezpečenia celého procesu prevodu vlastníctva, - komplexného finančného poradenstva a pomoci pri vybavovaní hypotekárneho úveru s najvýhodnejšími podmienkami na trhu.
| Cena predaj: | 409 900,00 € Za nehnuteľnosť |
| Číslo zakázky | 121-N01294 |
| Okres | Trenčín |
| Mesto | Trenčín |
| Ulica | Rybárska |
| Číslo poschodia | 3 |
| Počet poschodí | 6 |
| Celková plocha | 105 m² |
| Plocha terasy | 17 m2 |
Túto nehnuteľnosť Vám rád(a) predstaví (6 nehnuteľností)
Martin Domin
Martin Domin
RE/MAX EXTRAMlynská 310/39 (Dolný Mlyn)
Trenčín - Opatová, 911 01
Slovenská republika
Odkaz na partnera predaja
Tel. do kancelárie: +421 903 400 282
E-mail: martin.domin@re-max.sk
Ďalšie nehnuteľnosti partnera predaja
Hypokalkulačka





