Predaj bytu (3 izbový) 82 m2, Topoľčany
NitrianskyNa predaj - 3 izbový byt vo vyhľadávanej lokalite, blízko centra mesta Topoľčany
Detailné informácie
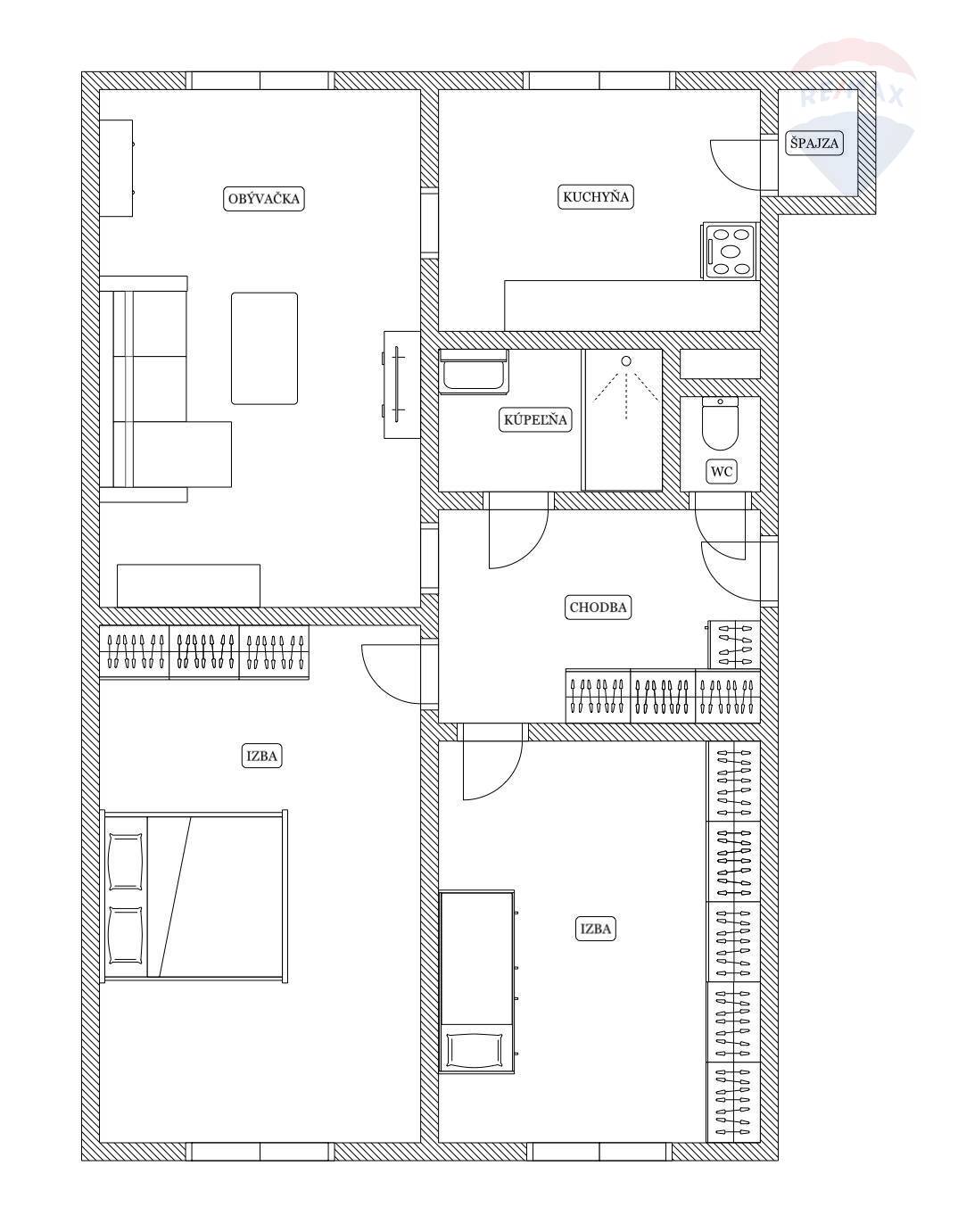
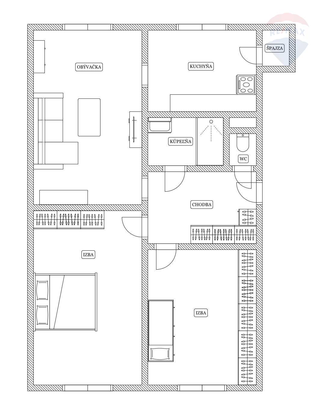
Realitná kancelária RE/MAX ponúka na predaj veľkometrážny 3-izbový byt o výmere 82 m², situovaný v zrekonštruovanom a zateplenom bytovom dome s novým výťahom a vymenenými stúpačkami. Byt sa vyznačuje výborným dispozičným riešením. Dispozícia pozostáva z: • dvoch veľkých samostatných izieb, • priestrannej a svetlej obývacej izby, • kuchyne so špajzou, • kúpeľne zväčšenej v rámci čiastočnej rekonštrukcie (so sprchovým kútom), • samostatného WC, • veľkej vstupnej chodby so vstavanou skriňou. Byt prešiel čiastočnou rekonštrukciou – menené plastové okná, vonkajšie rolety, úprava kúpeľne a doplnené vstavané úložné priestory v izbách, vďaka čomu je okamžite obývateľný. Jeho najväčšou výhodou je však nadštandardná podlahová plocha a praktické rozmiestnenie miestností, ktoré ponúka široké možnosti ďalšej modernizácie podľa predstáv nového majiteľa. Byt je ideálny pre rodiny, ktoré ocenia priestor, ale aj pre tých, ktorí hľadajú bývanie vo vyhľadávanej lokalite, blízko centra mesta s kompletnou občianskou vybavenosťou: škola, škôlka, supermarkety, zdravotnícke služby, lekáreň, reštaurácie, kúpalisko a mnoho iného. Zaujala vás táto ponuka? Kontaktujte nás a radi vám byt osobne predstavíme.
| Cena predaj: | 135 000,00 € Za nehnuteľnosť |
| Číslo zakázky | 025-N02164 |
| Okres | Topoľčany |
| Mesto | Topoľčany |
| Ulica | J. Matúšku |
| Číslo poschodia | 1 |
| Počet poschodí | 8 |
| Celková plocha | 82 m² |
Túto nehnuteľnosť Vám rád(a) predstaví (17 nehnuteľností)
Martin Brezina
Martin Brezina
RE/MAX CressTovárnická 2104/19
Topoľčany, 955 01
Slovenská republika
Odkaz na partnera predaja
Tel. do kancelárie: 0903 90 90 20
E-mail: martin.brezina@re-max.sk
Ďalšie nehnuteľnosti partnera predaja
Hypokalkulačka





