Predaj bytu (3 izbový) 60 m2, Piešťany
TrnavskýNa predaj 3 izbový byt, Pieštany, Orviská cesta
Detailné informácie
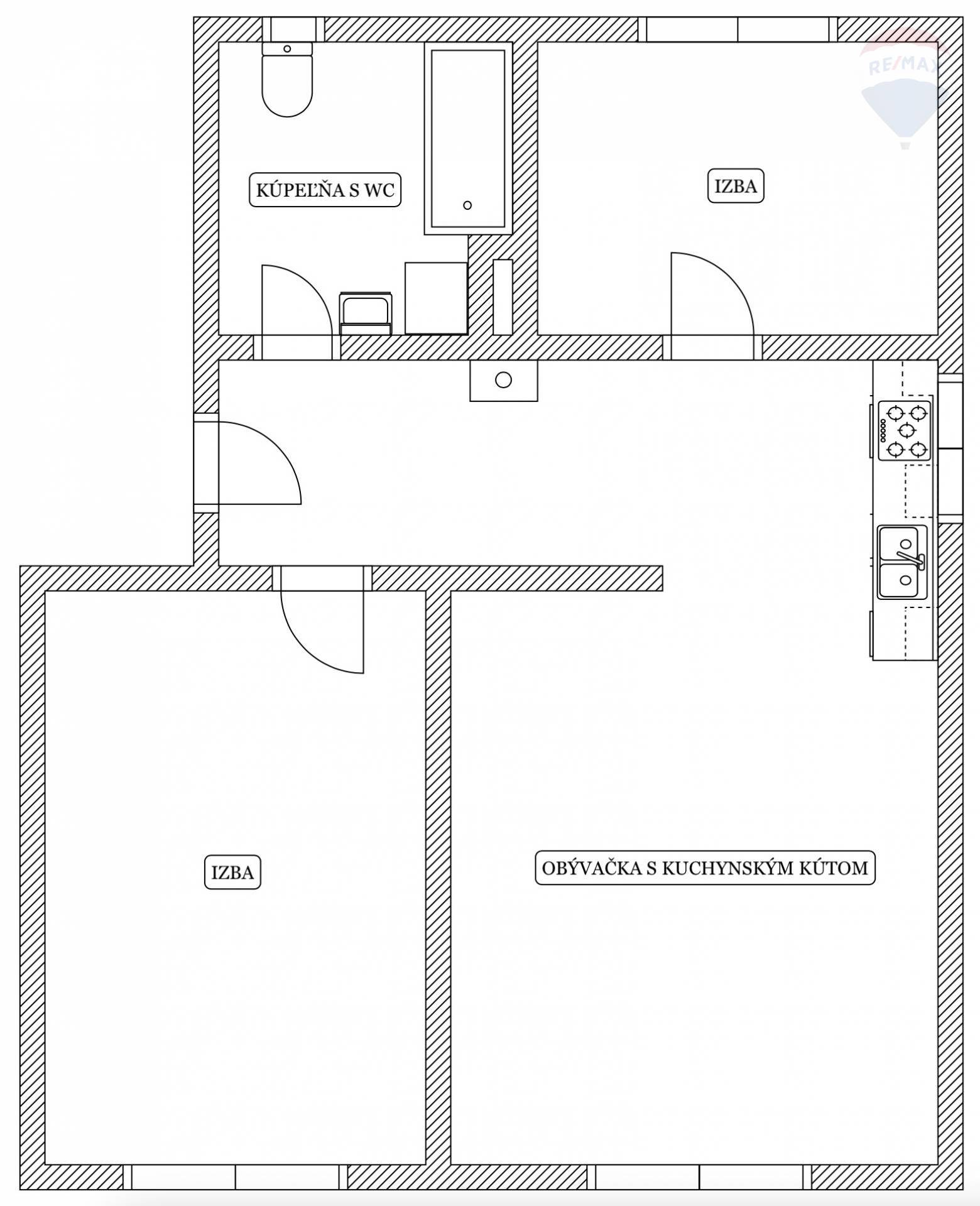
Realitná kancelária RE/MAX Vám vo výhradnom zastúpení majiteľa ponúka na predaj príjemný 3-izbový byt nachádzajúci sa v tichej lokalite Piešťan. Byt prešiel čiastočnou rekonštrukciou a predstavuje ideálnu voľbu pre tých, ktorí hľadajú slušné, cenovo dostupné a pokojné bývanie. Byt sa nachádza v okrajovej časti Piešťan na ulici Orviská cesta, ktorá je známa svojím pokojným prostredím a minimálnou dopravou. Výhodou je rýchla dostupnosť do centra mesta aj napojenie na diaľnicu D1, čo ocenia najmä tí, ktorí pravidelne cestujú. Celková podlahová plocha bytu je 60 m². Praktické dispozičné riešenie pozostáva z: • vstupnej chodby • kuchyňe spojenej s obývacou izbou • nepriechodnej spálne • detskej izby • kúpeľne s toaletou K bytu patria aj dve samostatné pivnice, ktoré poskytujú dostatok úložného priestoru, na pozemku ktorý prislúcha bytu je možné postaviť si garaž, altánok čo dáva bývaniu nový rozmer. Byt prešiel viacerými úpravami: • plastové okná s vonkajšími roletami • kompletná výmena všetkých rozvodov (elektrina, voda, odpad) • vlastné kúrenie na tuhé palivo – nízke mesačné náklady • možnosť kompletného vypratania podľa dohody Po drobných úpravách je byt pripravený na okamžité bývanie alebo ďalšiu modernizáciu podľa predstáv nového majiteľa. Výhody nehnuteľnosti • tichá lokalita vhodná pre rodiny aj jednotlivcov • výborná dostupnosť do mesta aj na diaľnicu • vlastné kúrenie = nízke prevádzkové náklady • dve pivnice • vhodné aj ako investícia (prenájom / ďalší predaj) Odporúčanie makléra Tento byt je vďaka svojej lokalite, dispozícii a technickému stavu výbornou investičnou príležitosťou pre širokú škálu záujemcov. Odporúčam jeho osobnú obhliadku, aby ste naplno vnímali pokojné okolie a potenciál tejto nehnuteľnosti.
| Cena predaj: | 85 000,00 € Za nehnuteľnosť |
| Číslo zakázky | 025-N02165 |
| Okres | Piešťany |
| Mesto | Piešťany |
| Ulica | Orviská cesta |
| Číslo poschodia | 1 |
| Počet poschodí | 2 |
| Celková plocha | 60 m² |
Video prehliadka
Túto nehnuteľnosť Vám rád(a) predstaví (14 nehnuteľností)
Martin Brezina
Martin Brezina
RE/MAX CressTovárnická 2104/19
Topoľčany, 955 01
Slovenská republika
Odkaz na partnera predaja
Tel. do kancelárie: 0903 90 90 20
E-mail: martin.brezina@re-max.sk
Ďalšie nehnuteľnosti partnera predaja
Hypokalkulačka





