Predaj bytu (2 izbový) 52 m2, Šenkvice
BratislavskýNa predaj priestranný 2-izbový byt s loggiou – 52 m², Šenkvice (Družstevná ul.)
Detailné informácie
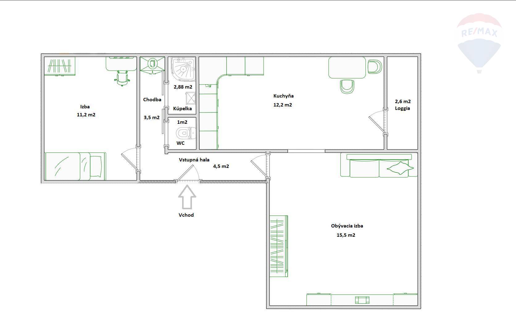
Ponúkame na predaj svetlý a dobre riešený 2-izbový byt o výmere 52,46 m² s loggiou v tichej časti obce Šenkvice. Byt sa nachádza na 1. poschodí (1/3) bez výťahu v tehlovom bytovom dome danom do užívania v roku 1975. ________________________________________ DISPOZÍCIA • Obývačka: 4,3 × 3,6 m • Spálňa: 3,6 × 3,1 m • Kuchyňa: 5,18 × 2,37 m • Kúpeľňa: 1,8 × 1,6 m • WC: 1,1 × 0,8 m • Chodba: 3,5 × 1 m • Vstupná hala: 4,3 × 1 m • Loggia: 2,4 × 1,1 m K bytu prislúcha samostatná pivnica o výmere 2 m². ________________________________________ STAV A VYBAVENIE • vymenené plastové okná s dvojsklom + žalúzie • loggia vybavená vonkajšími roletami • v bytovom dome prebehla kompletná výmena stupačiek TUV a SUV • bytové jadro z umakartových dosiek • ostatné časti bytu sú v pôvodnom stave, vhodné na kompletnú rekonštrukciu podľa vlastných predstáv Byt ponúka ideálnu príležitosť vytvoriť si moderné bývanie podľa vlastného vkusu. ________________________________________ PREVÁDZKOVÉ NÁKLADY (3 osoby) • nájomné správcovi: 175 € / mes. (fond opráv 45 €) • komunálny odpad: cca 40 € / osoba / rok • elektrina: cca 35 € / mes. • vykurovanie a TÚV: centrálne, plynovým kotlom Správca: Bytový podnik Modra ________________________________________ PARKOVANIE Bezproblémové bezplatné parkovanie v okolí bytového domu. ________________________________________ LOKALITA Byt sa nachádza na Družstevnej ulici, ktorá ponúka pokojné a bezpečné bývanie s kompletnou občianskou vybavenosťou v pešej dostupnosti: • obchody a služby • materská a základná škola • zdravotné stredisko • športoviská Autobusová aj vlaková stanica sú vzdialené približne 1 km. Výborná dostupnosť: • rýchly prístup na diaľnicu D1 – Senec (cca 10 min) • Bratislava – 23 km • Pezinok – 5,1 km • Senec – 8,5 km ________________________________________ SLUŽBY A CENA V rámci predaja poskytujeme bezplatné poradenstvo a pomoc pri financovaní formou hypotekárneho úveru. Cena je vrátane provízie realitnej kancelárie RE/MAX, kompletného právneho servisu a všetkých poplatkov spojených s prevodom vlastníctva. ________________________________________ KONTAKT Bližšie informácie alebo termín obhliadky Vám rada poskytnem: tel: 0903 866 871 email: erika.kitanovicsova@re-max.sk
| Cena predaj: | 140 000,00 € Za nehnuteľnosť |
| Číslo zakázky | 044-N08854 |
| Okres | Pezinok |
| Mesto | Šenkvice |
| Číslo poschodia | 1 |
| Počet poschodí | 3 |
| Celková plocha | 52 m² |
Túto nehnuteľnosť Vám rád(a) predstaví (6 nehnuteľností)
Erika Kitanovicsová
Erika Kitanovicsová
RE/MAX AttractiveHlavná 28/7, 2.p.
Dunajská Streda, 92901
Slovenská republika
Odkaz na partnera predaja
Tel. do kancelárie: +421 31 550 55 55
E-mail: erika.kitanovicsova@re-max.sk
Ďalšie nehnuteľnosti partnera predaja
Hypokalkulačka





