Predaj bytu (3 izbový) 68 m2, Bratislava - Petržalka
BratislavskýREZERVOVANÉ: svetlý, 3 izbový byt v Petržalke
Detailné informácie
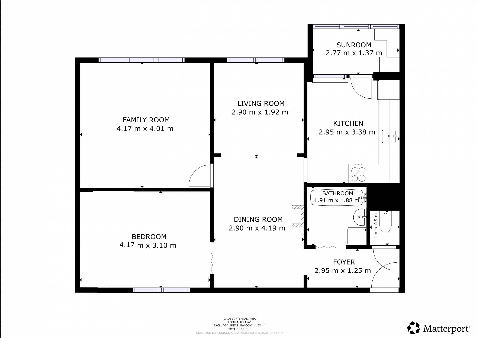
Realitná kancelária RE/MAX Expert exkluzívne ponúka na predaj vzdušný a slnečný 3-izbový byt na Kopčianskej ulici číslo 78, v bratislavskej mestskej časti Petržalka. Ponúkaný byt sa nachádza v panelovom bytovom dome na ideálnom 9. poschodí z 12tich, s príjemným výhľadom. Bytový dom je čistý, zrekonštruovaný. Na každom poschodí sa nachádzajú 4 byty. V dome sú 2 nové výťahy, nákladný a osobný. Bytový dom je zateplený, má vymenené stúpačky a vlastnú kotolňu. Vchod je pod kamerovým systémom, čo zvyšuje komfort a bezpečnosť bývania tunajších obyvateľov. DISPOZÍCIA Samotný byt je slnečný a pôsobí vzdušným dojmom. Celá nehnuteľnosť pozostáva z 3 miestností - priestrannej kuchyne, vstupnej chodbičky, kúpeľne, samostatného WC a zaskleného balkóna prístupného z kuchyne. Pôvodná dispozícia bytu bola jemne upravovaná, obývacia izba je prepojená s halou, čo vytvorilo pocit svetlosti a priestrannosti a vznikol tým priestor aj pre jedálenský kút. V byte boli vymenené plastové okná. Detail ponúkanej dispozície môžete vidieť v priloženom pôdoryse, či v 3D videoobhliadke. Nehnuteľnosť sa predáva nezariadená - takže pokiaľ plánujete rekonštrukciu, fantázii sa medze nekladú. :) K bytu prislúcha pivničná kobka o výmere necelých 2m2. Byt samotný sa rozprestiera na výmere 65m2 a balkón tvorí ďaľšie 3m2. Parkovanie je možné priamo v bezprostrednej blízkosti bytového domu, zatiaľ bez pass parkovacej politiky. LOKALITA Petržalka je bratislavská mestská časť s kompletnou občianskou vybavenosťou so všetkým, vrátane rýchleho presunu do centra mesta, či na diaľničný obchvat. Blízkosť jazera Draždiak poteší hlavne psíčkarov, milovníkov prírody a letného kúpania, takisto blízka petržalská hrádza podnecuje k aktívnemu životnému štýlu. Len na skok sa nachádzajú novostavby Matadorka living, či Vienna Gate s vybavením potrebných obchodov a služieb. Zastávka MHD je taktiež v pešej vzdialenosti a dostanete sa ňou kamkoľvek potrebujete. Cena nehnuteľnosti je konečná, v súčasnej situácii na trhu však atraktívna a ponúka priestor na finálnu prerábku podľa vlastných potrieb. Ak necítite istotu v procese financovania prostredníctvom hypotekárneho úveru, je Vám k dispozícii náš tím špičkových finančných poradcov. Zavolajte mi a dohodnime si obhliadku, rádi Vás touto nehnuteľnosťou osobne prevedieme. ;)
| Cena na vyžiadanie v kancelárii / Rezervované | |
| Číslo zakázky | 126-N00575 |
| Okres | Bratislava V |
| Mesto | Bratislava - Petržalka |
| Ulica | Kopčianska |
| Číslo poschodia | 9 |
| Počet poschodí | 12 |
| Celková plocha | 68 m² |
Virtuálna prehliadka
Túto nehnuteľnosť Vám rád(a) predstaví (9 nehnuteľností)
Zuzana Ďurinová
Zuzana Ďurinová
RE/MAX ExpertMolecova 4/C
Bratislava, 841 04
Slovenská republika
Odkaz na partnera predaja
Tel. do kancelárie: 0902 335 335
E-mail: zuzana.durinova@re-max.sk
Ďalšie nehnuteľnosti partnera predaja
Hypokalkulačka
Potrebujete poradiť / máte záujem o obhliadku?
Podobné nehnuteľnosti v okolí
Predaj bytu (3 izbový) 69 m2, Bratislava - Petržalka
Ak hľadáte byt, kde lokalita rozhoduje, práve ste ho našli. Realitná kancelária RE/MAX Radius ponúka exkluzívne na predaj 3i byt na začiatku
Prenájom bytu (3 izbový) 70 m2, Bratislava - Petržalka
Na prenájom 3-izbový byt – Slnečnice, Bratislava Petržalka 70 m² | loggia | pivnica | parkovanie v garáži Ponúkame na prenájom 3-izbo





